建筑功能:工业建筑
高度类别:单层建筑
图纸深度:施工图
结构形式:钢结构
钢结构:门式刚架
资料简介
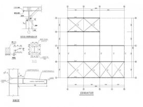
门式钢结构仓库全套施工图纸,本文件内含建筑施工图、结构施工图、水电施工图,图纸包括立面图、剖面图、一层平面图、屋顶平面图、门窗表、门窗详图、楼梯大样图、节点大样图、设计说明、基础及地梁平面布置图、地脚螺栓平面布置图、屋面支撑、系杆布置图、1、16轴柱间系杆、墙梁布置图等占地面积为5940.00m2,建筑面积5940.00m2,建筑层数为1层,建筑高度12.15m。储存物质火灾危险性类别为丙类,第二项,耐火等级为二级,均分为二个防火分区。建筑结构形式为门刚结构,建筑结构的类别为三类,合理使用年限为50年(轻钢屋面为25年)。
基础及地梁平面布置图
仓库立面图
门式钢架结构立面图
屋面平面图
屋面檩条、拉杆、隅撑布置图
柱间系杆、墙梁布置图
一层喷淋管道平面布置图
消火栓、灭火器平面布置图
一层照明平面图
- 加群专用
- 加入专属土木工程群
-

- 微信公众号
- 关注每天分享工程资料
-






















