本资料为贵州某高层办公楼电气施工图,项目地址位于贵州省内,总建筑面积为19112.24㎡,钢筋混凝土框架剪力墙结构,第三23层,地下1层,本建筑主要用于办公用途。
本次设计范围:
1.电力配电系统;
2.照明系统;
3.建筑物防雷、接地系统;
4.火灾自动报警系统;电气火灾监控系统、防火门监控系统、消防设备电源监控系统;
5.智能消防应急照明疏散指示系统源监控系统;
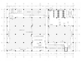
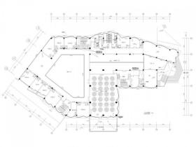
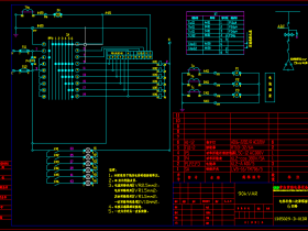
图纸截图
防雷及接地平面图
消防报警平面图
防火门监控系统图
低压竖向配电干线
配电系统图
火灾自动报警系统图
本资料下载地址如下:
- 加群专用
- 加入专属土木工程群
-

- 微信公众号
- 关注每天分享工程资料
-




















